Nos biens en locations

Patignies



Descriptif

Située dans le charmant village de Patignies, au cœur de la commune de Gedinne, cette agréable maison bénéficie de la proximité de tous les commerces et commodités.

Elle se compose:

Rez-de-chaussée :

Hall d’entrée avec WC
Vaste séjour lumineux
Cuisine super équipée (frigo, four, hotte, plaque vitrocéramique, lave-vaisselle)
Buanderie
Une pièce pouvant servir de bureau, de chambre, ..
Jardin
Garage

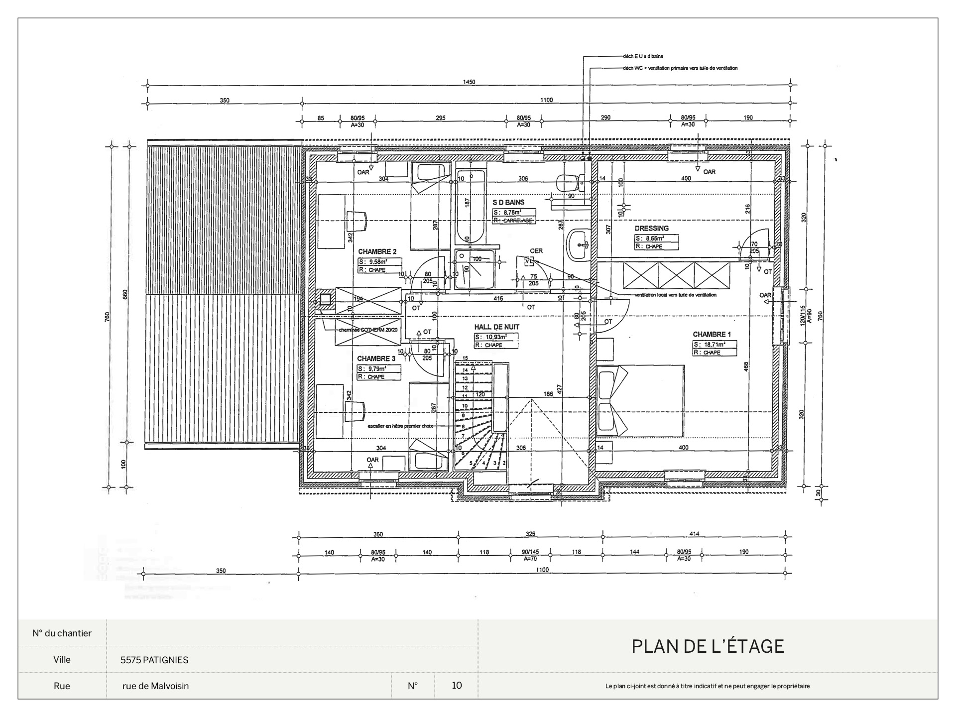
Étage :

Hall de nuit
Salle de bains avec une baignoire, une douche, un meuble lavabo, un WC
3 chambres confortables dont une avec un espace bureau ou dressing.

Points forts :

Quartier calme, entouré de verdure
PEB C – Chauffage au mazout
Double vitrage

À l’extérieur, vous profiterez d’un agréable espace vert entièrement clôturé ainsi que d’une terrasse, idéale pour vos moments de détente.


Détails

Nombre de façades : 4
Orientation : S
Année de construction : 2006
Type de chauffage : Chauffage centrale mazout y compris pour la production d'eau chaude sanitaire.
Type de chassis : Châssis en PVC, double vitrage super isolant, porte de garage sectionnelle isolée.

Informations

Loyer : 1 020,00 €
Disponibilité : 01 juillet 2026
Adresse : rue de Malvoisin 10
Contactez Laurie au +32484282166


Demande de visite

Composition

Hall : 1
Séjour : 1
Cuisine équipée : 1
Salle à manger : 1
Buanderie : 1
WC : 2
Hall de nuit : 1
Chambre(s) : 4
Salle de bains (baignoire & douche) : 1
Bureau : 1
Grenier : 1
Terrasse : 1
Jardin : 1
Garage : 1
Parking : 1

© 2019 - 2026 Ma-location.be, tous droits réservés